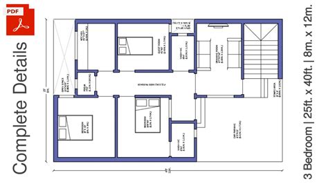
Ricky Irby Blog